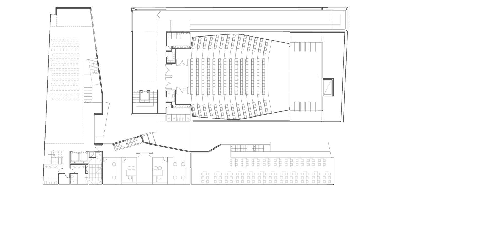
Concurso nacional de anteproyectos Edificio centro cultural de la universidad nacional de Córdoba
Autores Mariano Alonso, Ludmila Crippa.
Asociados Damian Capano, Pablo Dal Pra.
Equipo Flavio Becerro, Mauro Fernandez, Marcelo Mulet, Maria Quattordio.
Asesores Ricardo Rodríguez Prado (estructuras).
Programa Cultural.
Superficie 3500 m2
Ubicación Ciudad de Cordoba, Provincia de Cordoba, Argentina. (2009)
