Concurso nacional de anteproyectos Centro cultural de la legislatura del Neuquén.
Autores Mariano Alonso, Ludmila Crippa.
Asociados Pedro Yañez, Lucas Grande.
Equipo Juan Campanini, Constanza Chiozza, Rosendo Gagliano.
Asesores Gustavo Basso (acústico)
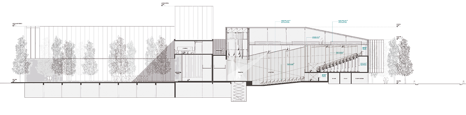
Programa Salas de concierto, salas polivalentes y talleres educativos.
Superficie 4000 m2
Ubicación Ciudad de Neuquén, Provincia de Neuquén, Argentina. (2013)
