• info@alonsocrippa.com.ar
  • +54 11 4542 2961
  • facebook
  • instagram
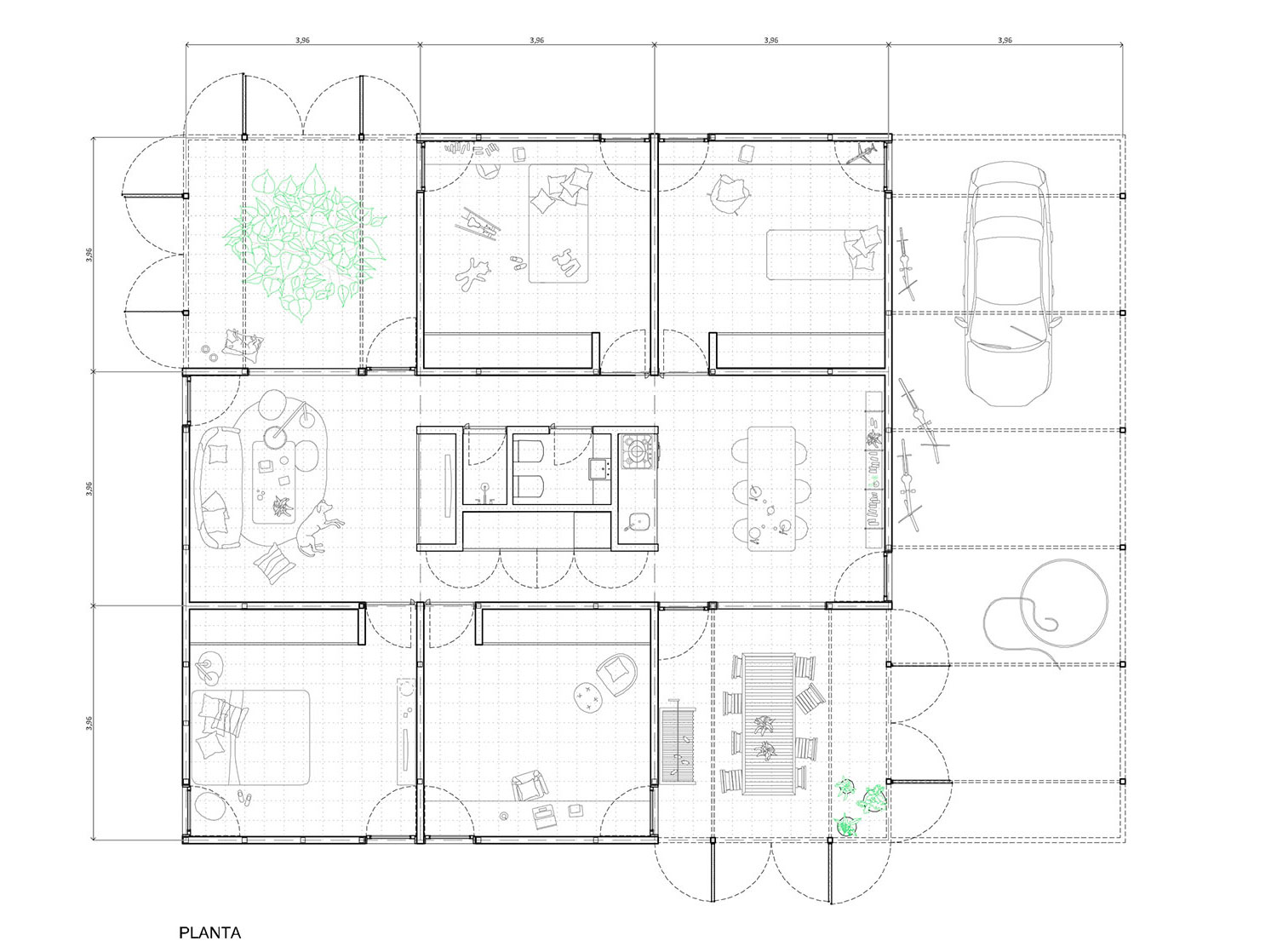
  • Concurso UNA CASA, Habitar Contemporánea. (Finalistas)

    Autores Mariano Alonso, Ludmila Crippa.

    Equipo Juan Campanini, Josefina Sposito, Federico Tejado, Mariana Muñoz Gibbs.

    Programa Vivienda individual industrializada.

    Superficie 120 m2

    Ubicación Argentina. (2015)