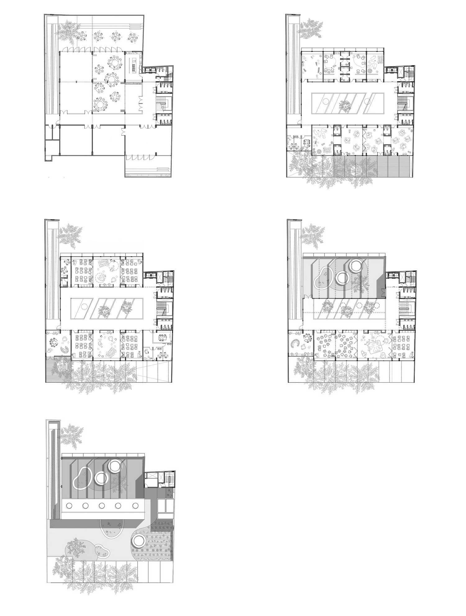
Concurso nacional de anteproyectos Hacia una nueva arquitectura escolar. (Segundo premio)
Autores Mariano Alonso, Ludmila Crippa.
Asociados Ariel Jinchuk.
Equipo Juan Campanini, Matías Mousse.
Asesores Ricardo Rodríguez Prado (estructuras), Edgardo Sequeyra (eléctricas), Claudio Marquet (sanitarias, gas y termomecanicas), Roberto Lombardi (proyecto)
Programa Escuela Primaria, Jardin de Infantes e Instituto de formación docente.
Superficie 3000 m2
Ubicación Villa Urquiza, ciudad autónoma de Buenos Aires, Argentina. (2012)
