















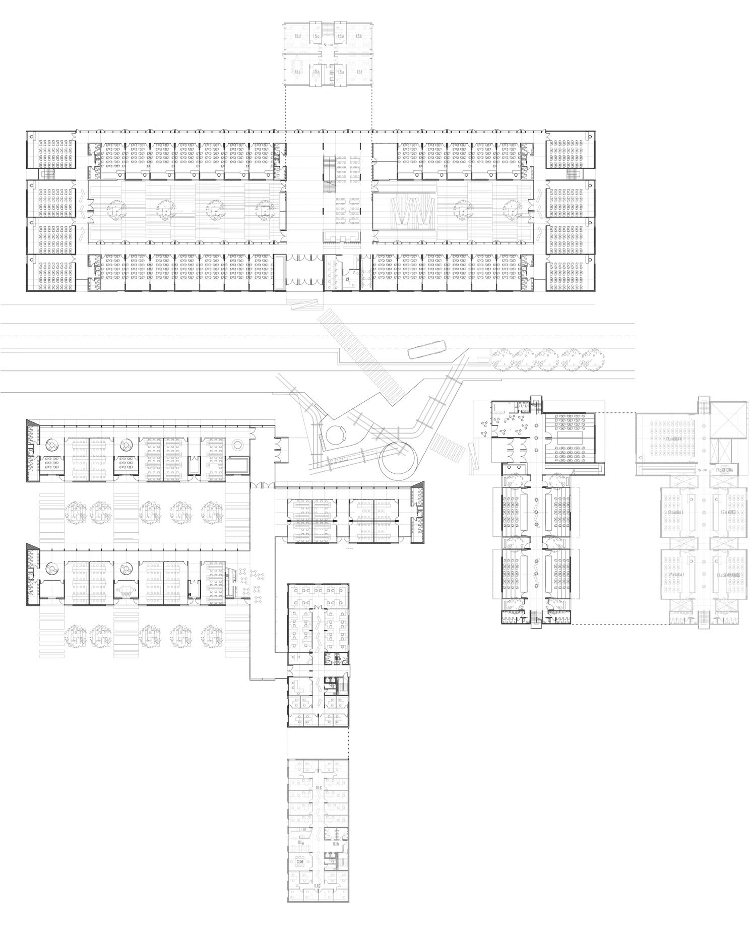
Concurso nacional de anteproyectos Masterplan Campus Universidad Nacional de Rio Negro, Sede Andina. (Tercer premio)
Autores Mariano Alonso, Ludmila Crippa.
Asociados Ariel Jinchuk
Equipo Damian Capano , Hernan Landolfo, Flavio Becerro, Mauro Fernandez, Marcelo Mulet, Matías Mousse.
Programa Educativo, cultural, deportivo y viviendas.
Superficie 27000 m2
Ubicación Bariloche, provincia de Rio Negro, Argentina. (2011)
